Zapytaj o cenę

    Chcesz poznać cenę mieszkania? Wyślij nam zapytanie.
    Odpowiemy najszybciej jak to możliwe.
    Wysłanie formularza oznacza akceptację polityki prywatności


    sprzedane


    Warning: Undefined variable $kuchnia_aneks in /home/platne/serwer65606/public_html/wp-content/plugins/opal-estate/templates/single-property/information.php on line 61

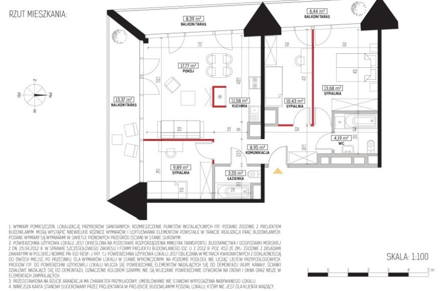
    M118 Mieszkanie 4 pokoje balkonem

    Metraż

    79,59 m2

    Piętro

    2

    Lokal

    M118

    Pokoje

    4

    Dodatki

    balkon